Caractéristiques du bien

Déjà loué 49 m² Clamart Panorama

Description du bien

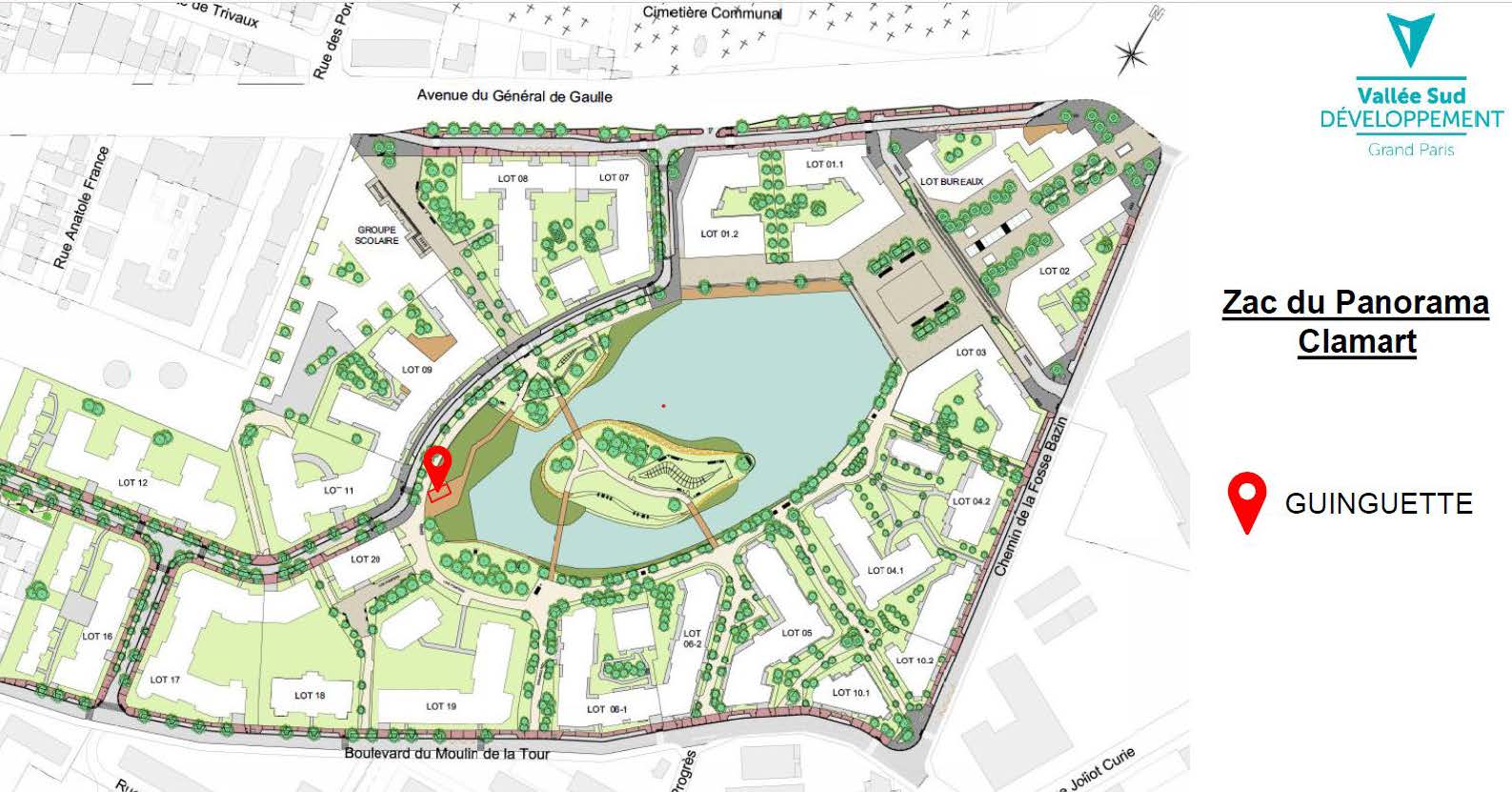
Localisée dans le nouveau quartier dynamique et en pleine mutation du Panorama, cette guinguette offre une surface de 49 m² ainsi qu'une terrasse extérieure exploitable de 80 m². Idéalement située à 2 minutes à pied du tramway T6 et à moins de 20 minutes de Paris en transport et en voiture. De nombreux commerces de proximités sont également présents aux alentours., 

Actualités rattachées

- 11 septembre 2025

Appel à candidatures : restaurant du centre Hunebelle - 27 mai 2025

Ces biens peuvent vous intéresser !

Commerce 191m² - Coeur Castellio - Chatillon

Disponible 191 m² Chatillon Centre-Ville

COMMERCE AVENUE DE VERDUN - CHATILLON

QUADRO - Coeur Castellio - Chatillon

Déjà loué 94 m² Chatillon Centre-Ville

COMMERCE AVENUE DE VERDUN - CHATILLON

ANIMALIS - Coeur Castellio - Chatillon

Déjà loué 196 m² Chatillon Centre-Ville

COMMERCE AVENUE DE VERDUN - CHATILLON